Cập nhật thông tin Hà Đô Centrosa Garden Quận 10: Bảng giá mới nhất, mặt bằng và hệ thống 21 tiện ích đẳng cấp. Tư vấn chuyên sâu từ đại lý SmartBDS. Xem ngay!
334 Đường Tô Hiến Thành, Phường Diên Hồng, TP. Hồ Chí Minh
Kingdom 101 là khu phức hợp căn hộ cao cấp được phát triển bởi Công ty Đông Dương (Tập đoàn Hoa Lâm) tại phường Diên Hồng, TP. Hồ Chí Minh. Với quy mô 3,3 ha cùng mật độ xây dựng chỉ 39%, dự án mang đến "Đặc Quyền Sống Xanh" – không gian sống xanh lớn nhất Quận 10.
Kingdom 101 – hay còn được biết đến với tên gọi Kingdom 101 Tô Hiến Thành – là dự án căn hộ cao cấp tọa lạc tại 334 Tô Hiến Thành, phường Diên Hồng, TP. Hồ Chí Minh (trước ngày 01/07/2025 thuộc phường 14, Quận 10, TP. Hồ Chí Minh, Xem chi tiết thay đổi địa giới hành chính TP.HCM 2025)). Với slogan "Đặc Quyền Sống Xanh", dự án lấy cảm hứng từ những công quốc phồn thịnh như Luxembourg, Đan Mạch, Monaco – nơi có chỉ số hạnh phúc cao nhất thế giới – để kiến tạo một "Vương quốc Xanh" giữa lòng đô thị.
Dự án được phát triển bởi Công ty Cổ phần Phát triển Đô thị Đông Dương, trực thuộc Tập đoàn Hoa Lâm – tập đoàn đa ngành với hơn 30 năm kinh nghiệm, nổi tiếng qua các dự án cao ốc Lim Tower 1-2, Khu Y tế Kỹ thuật cao Hoa Lâm – Shangri-La và AEON Mall Bình Tân. Đồng hành cùng dự án là Coteccons – tổng thầu xây dựng số 1 Việt Nam, Verticall Studio đảm nhận thiết kế cảnh quan, FQM giám sát xây dựng và Tập đoàn JLL quản lý vận hành.
Kingdom 101 được khởi công vào tháng 9/2017 và đã hoàn thành bàn giao từ đầu năm 2020 sau 22 tháng thi công. Hiện tại, dự án đang vận hành ổn định với cộng đồng cư dân đông đúc. Sản phẩm tại đây được cấp sổ hồng lâu dài cho người Việt Nam và sở hữu 50 năm cho người nước ngoài.
Kingdom 101 được quy hoạch trên tổng diện tích 33.000 m² (3,3 ha), trong đó mật độ xây dựng chỉ chiếm 39%, còn lại hơn 60% dành cho công viên cây xanh nội khu, hồ cảnh quan và tiện ích công cộng. Đây là tỷ lệ mảng xanh hiếm có tại các dự án trung tâm thành phố, với công viên nội khu rộng khoảng 1 ha và hơn 85 vườn cây trên cao bố trí khắp các tầng.
Dự án gồm 3 tòa tháp (Block A – Dynasty Tower, Block B – Kingsley Tower, Block C – Monarchy Tower) bố trí theo hình chữ U, với chiều cao 30 tầng nổi và 2 tầng hầm liên thông. Tổng số sản phẩm tại đây là 986 căn hộ cao cấp, đa dạng từ căn hộ 1 phòng ngủ đến penthouse 4 phòng ngủ, cùng một số căn shophouse thương mại tại khối đế.
Cụ thể, phân khúc căn hộ gồm: 1PN (48–61 m², chiếm ~16%), 2PN (70–79 m², chiếm ~70%), 3PN (~102 m², chiếm ~12%), Duplex thông tầng (90–150 m², ~14 căn) và Penthouse (160–200 m², số lượng hạn chế). Căn hộ 2 phòng ngủ là sản phẩm chủ đạo, phù hợp cho gia đình hạt nhân; căn 3 phòng ngủ đều là căn góc với 2 mặt thoáng.
Kingdom 101 tọa lạc tại 334 Tô Hiến Thành, phường Diên Hồng, TP. Hồ Chí Minh – vị trí được mệnh danh là "kim cương" giữa lòng Quận 10. Từ đây, cư dân dễ dàng kết nối đến trung tâm Quận 1 trong 10 phút, sân bay Tân Sơn Nhất chỉ 10 phút và các bệnh viện tuyến cuối như Chợ Rẫy, Hùng Vương trong 5 phút di chuyển.
Kingdom 101 tọa lạc tại giao lộ Tô Hiến Thành – Thành Thái, sở hữu lợi thế hai mặt tiền tiếp giáp hai trục đường huyết mạch của Quận 10. Mặt tiền phía Nam trải dài theo đường Tô Hiến Thành – trục Đông-Tây kết nối Quận 3 và Quận 11; mặt tiền phía Tây tiếp giáp đường Thành Thái – trục Bắc-Nam kết nối Quận 5 và Quận Tân Bình. Phía Bắc dự án tiếp giáp khuôn viên Đại học Bách Khoa TP.HCM, mang lại tầm nhìn thoáng đãng và môi trường yên tĩnh.
Về kết nối đường bộ, dự án nằm trong ma trận giao thông đa hướng với các trục đường lớn: Lý Thường Kiệt (cách ~500m) – tuyến thương mại liên quận kết nối sân bay Tân Sơn Nhất qua Quận 10 xuống Chợ Lớn; đường 3 Tháng 2 (cách ~1km) – một trong những đại lộ lớn nhất TP.HCM; Cách Mạng Tháng Tám (cách ~1km) – cửa ngõ ngắn nhất vào trung tâm Quận 1. Từ Kingdom 101, cư dân di chuyển đến chợ Bến Thành trong 10 phút, sân bay Tân Sơn Nhất trong 10-15 phút, và các tỉnh miền Tây qua Quốc lộ 1A (cách ~7km) hoặc cao tốc TP.HCM – Trung Lương (cách ~12km).
Dự án được phục vụ bởi mạng lưới giao thông công cộng dày đặc với khoảng 6 tuyến xe buýt đi qua khu vực (tuyến 08, 59, 69, 94, 103, 119), trong đó tuyến 119 kết nối trực tiếp sân bay Tân Sơn Nhất – Bến xe Miền Tây. Trạm xe buýt "Tô Hiến Thành" nằm ngay gần dự án, hoạt động từ 04:45 đến 21:00 hàng ngày. Ngoài ra, ga Sài Gòn (ga đường sắt trung tâm tại Quận 3) chỉ cách dự án khoảng 3km.
Đặc biệt, Kingdom 101 nằm trong vùng ảnh hưởng trực tiếp của Tuyến Metro số 5 (Ngã tư Bảy Hiền – Cầu Sài Gòn) với ga Bách Khoa chỉ cách dự án 300-500m. Đây là tuyến "vành đai" quan trọng nhất, kết nối tất cả các tuyến metro hướng tâm khác. Bên cạnh đó, Tuyến Metro số 2 (Bến Thành – Tham Lương) dự kiến hoàn thành năm 2030 cũng sẽ nâng tầm giá trị kết nối của khu vực. Khi hệ thống metro đi vào hoạt động, cư dân có thể tiếp cận toàn bộ mạng lưới giao thông công cộng của thành phố chỉ bằng vài phút đi bộ.
Xung quanh Kingdom 101 là hệ thống tiện ích ngoại khu đã phát triển hoàn chỉnh, đặc biệt mạnh về y tế, giáo dục và thương mại. Đây là các tiện ích "thực" phục vụ nhu cầu thiết yếu hàng ngày – lợi thế vượt trội so với các khu đô thị mới chưa hoàn thiện hạ tầng.
Về y tế, Quận 10 và Quận 5 được mệnh danh là "thủ phủ y tế" của miền Nam. Cư dân Kingdom 101 tiếp cận các bệnh viện tuyến cuối chỉ trong 5 phút: Bệnh viện Chợ Rẫy (đa khoa lớn nhất Việt Nam), Bệnh viện Hùng Vương (sản phụ khoa hàng đầu), Bệnh viện Nhân dân 115 (tim mạch, đột quỵ), Viện Tim TP.HCM, Bệnh viện Đại học Y Dược. Ngoài ra, hệ thống phòng khám tư nhân như Saigon Healthcare, Pharmacity nằm trong bán kính 200-500m đáp ứng nhu cầu khám nhanh.
Về giáo dục, khu vực sở hữu mật độ trường học dày đặc từ mầm non đến đại học. Ngay trong nội khu dự án có Trường Mầm non Quốc tế Kindy Garden (KGIS) tại Block B. Lân cận có Trường Quốc tế Việt Úc (VAS), Trường Anne Hill, Trường Tiểu học Võ Trường Toản (trường điểm Quận 10). Đặc biệt, Đại học Bách Khoa TP.HCM liền kề dự án, cùng với ĐH Y khoa Phạm Ngọc Thạch, ĐH Ngoại ngữ - Tin học (HUFLIT), ĐH Kinh tế TP.HCM trong bán kính 2km – tạo nguồn cầu cho thuê rất lớn từ giảng viên và sinh viên.
Về thương mại, siêu thị GO! (Big C Miền Đông) nằm gần như đối diện dự án tại 268 Tô Hiến Thành. Vạn Hạnh Mall – TTTM lớn nhất Quận 10 với CGV, trung tâm mua sắm và ẩm thực – chỉ cách 1,5km. Các chợ truyền thống như Chợ Nhật Tảo, Chợ Hòa Hưng, Chợ An Đông đều trong bán kính 1-2km. Hệ thống ngân hàng BIDV, Agribank, VietinBank, MBBank phân bố dày đặc trong bán kính 100-500m phục vụ nhu cầu tài chính.
Mặt bằng Kingdom 101 được thiết kế khoa học với 3 block (Block D, Block K, Block M) bố trí theo hình chữ U, tạo không gian nội khu thoáng đãng hướng về công viên trung tâm. Dự án cung cấp đa dạng loại căn từ 1 phòng ngủ đến 3 phòng ngủ cùng dòng sản phẩm Duplex độc đáo, diện tích từ 48 m² đến 102 m², đáp ứng nhu cầu từ người độc thân đến gia đình đa thế hệ.
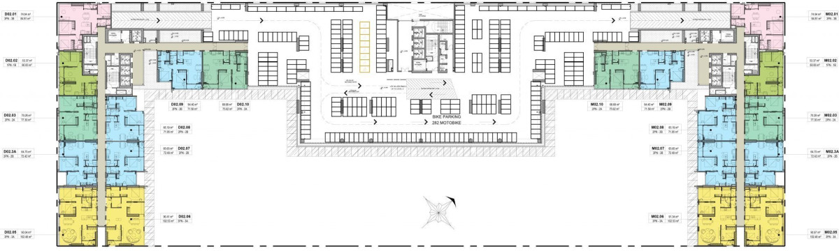
Mặt bằng tầng 2 Kingdom 101 gồm 20 căn hộ (10 căn Block D + 10 căn Block M), phục vụ bởi 4 thang máy và 2 thang bộ mỗi block. Tầng này chưa có Block K do khu vực giữa được bố trí tiện ích chung. Đặc biệt, tầng 2 có bãi đậu xe máy 282 chỗ nằm giữa 2 block, thuận tiện cho cư dân.
Các căn hộ tại tầng 2 đa dạng từ 1 phòng ngủ đến 3 phòng ngủ, diện tích từ 60 m² đến 102 m². Điểm nổi bật là các căn góc 3PN diện tích lớn (102 m²) sở hữu view đẹp nhất tầng, trong khi các căn 2PN chiếm tỷ trọng chủ đạo với diện tích từ 71-77 m².
Mặt bằng tầng 3 Kingdom 101 gồm 26 căn hộ (13 căn Block D + 13 căn Block M), tăng 6 căn so với tầng 2 nhờ bổ sung thêm các căn hộ 1PN diện tích nhỏ (~48 m²). Hai block được thiết kế đối xứng và nối liền với nhau, tạo sự đồng bộ về mặt bằng.
Điểm nổi bật của tầng 3 là sự xuất hiện của căn hộ 1PN diện tích 48 m² – loại căn nhỏ nhất tại Block D và M, phù hợp cho người độc thân hoặc nhà đầu tư cho thuê. Nhóm căn 2PN diện tích 71-73 m² chiếm đa số với 10 căn (38% tổng số), là lựa chọn phổ biến nhất.
Mặt bằng tầng 4 Kingdom 101 là tầng tiện ích với chỉ 18 căn hộ (9 căn Block D + 9 căn Block M) – giảm 8 căn so với tầng 3 do loại bỏ dãy căn giữa để làm đường dẫn ra khu tiện ích. Đây là tầng tập trung các tiện ích cao cấp nhất của dự án.
Tiện ích nội khu đặc biệt tại tầng 4 bao gồm: hồ bơi tràn bờ dành cho người lớn và trẻ em nằm giữa 2 tòa tháp, Gym & Fitness Center đối diện hồ bơi, khu vực café, phòng thay đồ (Locker) và sinh hoạt cộng đồng. Các căn hộ tại đây có lợi thế view trực tiếp ra hồ bơi và tiện ích.
Mặt bằng tầng 5 Kingdom 101 là tầng đặc biệt nhất với sự xuất hiện của Block K (khối trung tâm) ở giữa hai tháp, nâng tổng số lên 36 căn hộ – mật độ cao nhất dự án. Tầng này đánh dấu sự ra mắt của dòng sản phẩm Duplex thông tầng độc đáo. Block K được trang bị 3 thang máy và 2 thang bộ riêng biệt.
Cơ cấu căn hộ tầng 5: Block D và Block M mỗi block có 11 căn hộ thường + 2 căn Duplex (thông tầng lên tầng 6); Block K có 10 căn Duplex (toàn bộ thông tầng lên tầng 6). Tổng cộng có 14 căn Duplex trên toàn tầng 5, được ví như "biệt thự trên không" với ban công sân vườn rộng rãi – sản phẩm cao cấp nhất, số lượng hạn chế.
Mặt bằng tầng 6 Kingdom 101 gồm 22 căn hộ thường tại Block D (11 căn) và Block M (11 căn). Riêng Block K tại tầng 6 không có căn hộ mới – toàn bộ diện tích là tầng trên (tầng 2) của 10 căn Duplex đã bắt đầu từ tầng 5. Tương tự, 4 căn Duplex tại Block D/M cũng thông tầng lên đây.
Điểm nổi bật của tầng 6 là sự xuất hiện của căn hộ diện tích nhỏ nhất toàn dự án (~43 m²) tại vị trí tiếp giáp Block K, phù hợp cho người độc thân hoặc đầu tư cho thuê. Nhóm căn 70-75 m² chiếm đa số với 18 căn (75%), là lựa chọn phổ biến cho gia đình trẻ.
Lưu ý: Block K tầng 6 là tầng trên của Duplex, không tính vào số căn hộ tầng này.
Mặt bằng tầng điển hình Kingdom 101 áp dụng cho 24 tầng (từ tầng 7 đến tầng 30), mỗi tầng gồm 36 căn hộ: Block D (13 căn), Block K (10 căn) và Block M (13 căn). Đây là mặt bằng chuẩn mực của dự án với cơ cấu căn hộ đồng nhất, không có Duplex.
Hệ thống thang máy phục vụ tối ưu: Block D và Block M mỗi block có 4 thang máy, Block K có 3 thang máy – tổng cộng 11 thang máy cho 36 căn/tầng, đảm bảo tỷ lệ ~3,3 căn/thang máy. Các căn góc 3PN tại Block D và M sở hữu view đẹp nhất với 2 mặt thoáng, hướng ra ngoại khu và công viên nội khu.
Tổng hợp cơ cấu căn hộ tầng điển hình:
Kingdom 101 mang đến hệ thống tiện ích nội khu chuẩn 5 sao, đáp ứng trọn vẹn nhu cầu thể thao, nghỉ dưỡng và giải trí của cư dân. Từ hồ bơi tràn bờ, công viên nội khu 1,4 ha đến spa cao cấp – tất cả kiến tạo phong cách sống "Đặc Quyền Sống Xanh" ngay giữa lòng Quận 10.
Với mật độ xây dựng chỉ 39%, Kingdom 101 dành hơn 60% diện tích cho hệ thống công viên cây xanh và tiện ích nội khu – tỷ lệ xanh cao bậc nhất khu vực Quận 10. Lấy cảm hứng từ các vương quốc phồn thịnh như Luxembourg, Đan Mạch, Monaco, dự án kiến tạo một "Vương quốc Xanh" với môi trường sống riêng tư, yên bình và đẳng cấp.
Chuỗi 12 tiện ích nội khu của Kingdom 101 được phân bổ khoa học: tầng 4 tập trung các tiện ích thể thao và giải trí (hồ bơi, gym, yoga, spa); khu vực podium bố trí nhà hàng, café; công viên nội khu trải dài xung quanh 3 tòa tháp. Mỗi tiện ích đều hướng đến sự thoải mái, nâng cao sức khỏe và chất lượng sống cho cư dân.
Xem tất cả tiện ích
...
Khám phá các dự án nổi bật khác trong cùng khu vực.
946, 3 tháng 2, Phú Thọ, Hồ Chí Minh
200, 3 tháng 2, Hòa Hưng, Hồ Chí Minh
Chuyên gia của chúng tôi sẽ liên hệ tư vấn miễn phí cho bạn trong thời gian sớm nhất.